Exhibit 10.9
FOURTH AMENDMENT TO OFFICE LEASE AGREEMENT
This FOURTH AMENDMENT TO OFFICE LEASE AGREEMENT (this "Fourth
Amendment") is made effective as of November 20, 2024 (the "Effective Date"), by and between RREF II PACIFIC CENTER LLC, a Delaware limited liability company ("Landlord"), and EMMAUS LIFE SCIENCES, INC., a Delaware corporation ("Tenant"). Landlord and Tenant are each sometimes referred to herein as a "Party" and collectively as the "Parties".
R E C I T A L S:
A.Bixby Torrance, LLC, a Delaware limited liability company ("Bixby") and Tenant entered into that certain Office Lease Agreement dated October 17, 2014 (the "Original Lease"), as amended by that certain (i) Statement of Tenant Regarding Lease Commencement (undated) (the "Tenant Statement") executed by Tenant, (ii) First Amendment to Office Lease Agreement dated February 1, 2018 (the "First Amendment") between Landlord (as successor-in-interest to Bixby) and Tenant, (iii) Second Amendment to Office Lease Agreement dated December 6, 2018 (the "Second Amendment") between Landlord (as successor-in-interest to Bixby) and Tenant, and (iv) Third Amendment to Office Lease Agreement dated September 10, 2019 (the "Third Amendment") between Landlord and Tenant. The Original Lease, the Tenant Statement, the First Amendment, the Second Amendment and the Third Amendment are collectively referred to herein as the "Lease".
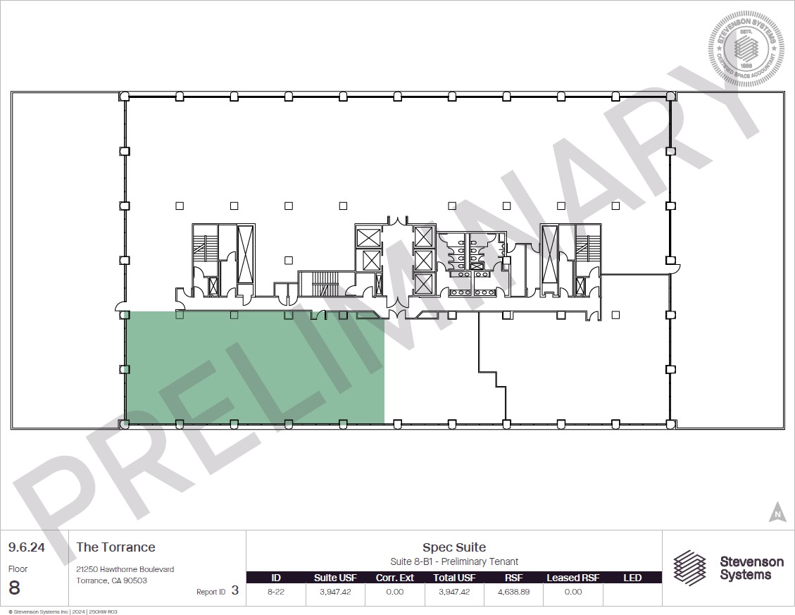
B.Pursuant to the Lease, Landlord is currently leasing to Tenant and Tenant is currently leasing from Landlord that certain space (collectively, the "Existing Premises") containing approximately 21,293 rentable square feet commonly known as Suite 800 and located on the eighth (8th) floor of that certain office building located at 21250 Hawthorne Blvd., Torrance, CA 90503 (the "Building"), all as more particularly set forth in the Lease.
C.As of the Effective Date: (i) Tenant has failed to pay to Landlord certain amounts of Rent in the total amount of $1,359,062.77 (collectively, the "Past Due Amount"); and
(ii) Landlord applied the entire Security Deposit held by Landlord under the Lease (in an amount equal to $160,000.00) towards certain other outstanding Rent amounts and Tenant has failed to replenish the Security Deposit to equal the full Security Deposit as stated hereinabove (such amount, the "Full SD Replenishment Amount").
D.In connection with the Past Due Amount and Full SD Replenishment Amount, Landlord sent to Tenant that certain (i) Three-Day Notice of Default Regarding Payment of Rent dated May 28, 2024 (the "Rent Default Notice"), and (ii) Notice Regarding Breach and Application of Security Deposit; Demand for Restoration of Security Deposit dated May 28, 2024 (the "SD Replenishment Default Notice" and together with the Rent Default Notice, the "Tenant Default Notices").
E.Tenant, through various correspondence with Landlord and Landlord's agents (the "Default Response"), disputes the claims in the Tenant Default Notices and alleged certain defenses in connection therewith (the "Tenant Defenses").
F.As used herein, the "Existing Dispute" shall mean: (i) the Tenant Default Notices
and Landlord's claims thereunder; (ii) Tenant's breach of the Lease under the Tenant Default Notices and in connection with all other amounts of the Past Due Amount; and (iii) the Tenant Defenses.
G.Landlord and Tenant now desire to amend the Lease to (i) settle the Existing Dispute, and (ii) in connection therewith, modify certain terms and provisions of the Lease, all as hereinafter provided, including, without limitation: (A) conditionally waiving Tenant's obligation to pay the Conditionally Waived Pre-Reduction Base Rent Amount as defined and set forth hereinbelow; (B) reducing the total Security Deposit and amount to be replenished; (C) providing for Tenant's deferred repayment of the Past Due Amount; (D) reduce the size of the Existing Premises by deducting therefrom that certain portion of the Existing Premises (referred to herein as the "Reduction Premises") containing approximately 4,639 rentable square feet, as depicted on Exhibit A attached hereto; and (E) extend the Second Extended Term and Expansion Space Term (i.e., the existing co-terminus lease terms) for the Fourth Amendment Term (as defined below) with respect to the Remaining Premises (as defined below).
H.Except as otherwise set forth herein, all capitalized terms used in this Fourth Amendment shall have the same meaning as such terms have in the Lease.
NOW, THEREFORE, in consideration of the foregoing Recitals and the mutual covenants contained herein, and for other good and valuable consideration, the receipt and sufficiency of which are hereby acknowledged, the parties hereto agree as follows:
1.Settlement of Existing Dispute. Notwithstanding anything in the Lease (as hereby amended) to the contrary, but subject to the covenants, terms and conditions set forth below in this Fourth Amendment, in partial consideration for each Party executing this Fourth Amendment and as full compensation to each Party for any and all costs, damages and losses suffered or incurred by such party with respect to and/or in connection with the Existing Dispute:
1.1Mutual Releases. Upon the mutual execution and delivery of this Fourth
Amendment:
1.1.1Landlord and Tenant, on behalf of themselves, and each of their
respective past, present and future owners, parents, predecessors, subsidiaries, affiliates, partners, members, managers, officers, directors, shareholders, employees, agents, successors, assigns, heirs, trustees, beneficiaries, attorneys, administrators, and executors, in their capacity as such, hereby release and forever discharge the other and each of the other's respective past, present and future owners, parents, predecessors, subsidiaries, affiliates, partners, members, managers, officers, directors, shareholders, employees, agents, successors, assigns, heirs, trustees, beneficiaries, administrators, and executors, in their capacity as such, of and from any and all charges, complaints, claims, liabilities, obligations, promises, agreements, damages, actions, causes of action, suits, rights, demands, costs, losses, debts, and expenses (including attorneys' fees and costs) actually incurred, of any nature whatsoever, known or unknown, suspected or unsuspected, which, as of the Effective Date, such Party now has, owns or holds, or claims to have owned or held, or which one Party at any time heretofore has owned or held, or claimed to have
had, owned or held, against the other Party, with respect to the Existing Dispute (collectively, the "Released Existing Dispute Claims").
1.1.2The Parties acknowledge that they might hereafter discover facts different from or in addition to those they now know or believe to be true with respect to the Released Existing Dispute Claims, and they expressly agree to assume the risk of possible discovery of additional or different facts, and agree that the terms contained in this Fourth Amendment shall be and remain effective in all respects regardless of such additional or different discovered facts, or any change in circumstances.
1.1.3The Parties expressly acknowledge and agree that the foregoing release contained in this Section 1.1 does not apply to, affect or cover any claims, rights, demands, suits, actions or causes of action, losses, costs, obligations, liabilities, expenses, debts or duties which Landlord and Tenant may have under, arising out of, or relating to the Lease (as hereby amended) first arising after the Effective Date, all of which matters are expressly reserved.
1.1.4The Parties will bear their own respective costs and attorneys' fees in connection with the Existing Dispute and this Fourth Amendment. However, if any action is filed with respect to the Lease (as hereby amended), including but not limited to any action for unlawful detainer or to enforce the Lease (as hereby amended), then all costs and expenses incurred by the prevailing party therein (including, without limitation, its actual appraisers', accountants', attorneys' and other professional fees and court costs) shall be paid by the other party.
1.2Waiver of California Code of Civil Procedure Section 1542. With respect to the Released Existing Dispute Claims set forth above, and those claims only, the Parties acknowledge that they have either been advised by legal counsel or have made themselves familiar with the provisions of California Civil Code section 1542, which provides as follows:
A GENERAL RELEASE DOES NOT EXTEND TO CLAIMS THAT THE CREDITOR OR RELEASING PARTY DOES NOT KNOW OR SUSPECT TO EXIST IN HIS OR HER FAVOR AT THE TIME OF EXECUTING THE RELEASE AND THAT, IF KNOWN BY HIM OR HER, WOULD HAVE MATERIALLY AFFECTED HIS OR HER SETTLEMENT WITH THE DEBTOR OR RELEASED PARTY.
The Parties, being aware of the above code section, hereby expressly waive any rights they may have thereunder, as well as under any other statutes or common-law principles of similar effect pertaining to the Released Existing Dispute Claims.
2.Conditionally Waived Pre-Reduction Base Rent Amount. Subject to Tenant's potential repayment obligations under Sections 3.2 and 14 below, as the case may be, Landlord hereby agrees to conditionally waive Tenant's obligation to otherwise pay a portion of each monthly installment of Base Rent otherwise due and payable by Tenant during the period from September 1, 2024 (on a retroactive basis, as applicable) through and including the day immediately preceding the Reduction Date, as defined below, such that the Base Rent due and payable by Tenant for the Existing Premises during such period shall be conditionally revised to a total of $18,556.00 per month (calculated based on 4,639 rentable square feet and a Base Rent
monthly rental rate of $4.00 per rentable square foot) (the "Special Revised Base Rent"). The applicable difference between the amount of the Special Revised Base Rent and the applicable monthly installment of Base Rent that would otherwise be due and payable by Tenant under the Lease for the Existing Premises without the foregoing conditional waiver is sometimes referred to as the "Conditionally Waived Pre-Reduction Base Rent Amount".
3.1Termination of Reduction Premises. Notwithstanding anything to the contrary contained in the Lease, as hereby amended, but subject to Section 3.6 below, the Lease with respect to the Reduction Premises shall terminate and be of no further force and effect as of the end of the day on the date (the "Reduction Date") that Landlord causes the Demising Work to be Substantially Completed (as such terms are defined in Section 3.3 below) in the Remaining Premises. Accordingly, effective from and after the date immediately following the Reduction Date, the remaining premises leased by Tenant under the Lease, as hereby amended, shall consist solely of the remaining portion of the Existing Premises other than the Reduction Premises (i.e., a total of approximately 16,654 rentable square feet as depicted on Exhibit A attached hereto) (sometimes referred to herein as the "Remaining Premises"), and all references to the "Premises" in the Lease shall mean and refer to the Remaining Premises. Notwithstanding the termination of the Lease, as hereby amended, with respect to the Reduction Premises as provided herein or any provision of this Amendment to the contrary, Tenant shall remain liable for: (i) all of its obligations as Tenant under the Lease, as hereby amended, with respect to the Reduction Premises arising prior to and including the Reduction Date; and (ii) all of Tenant's indemnification and other obligations with respect to the Reduction Premises which expressly survive termination of the Lease, as hereby amended.
3.2Surrender of Reduction Premises. Tenant covenants to surrender and deliver exclusive possession of the Reduction Premises to Landlord on or before the Reduction Date in accordance with the applicable vacation and surrender provisions of the Lease, including, without limitation, Sections 8 and 26 of the Original Lease. Following the Reduction Date, Tenant shall not enter, occupy or use the Reduction Premises. If Tenant does not so vacate and surrender exclusive possession of the Reduction Premises to Landlord on or before the Reduction Date, then Tenant shall be deemed to be in holdover of the Reduction Premises subject to and in accordance with Section 22 of the Original Lease (provided, that, notwithstanding anything in this Lease, as hereby amended, to the contrary: (i) the holdover rent therein shall be calculated at 150% of the total Base Rent due and payable for the Existing Premises without regard to any discounted amounts as a part of the Conditionally Waived Pre-Reduction Base Rent Amount; and (ii) the accrual of the Conditionally Waived Pre-Reduction Base Rent Amount shall immediately cease as of the start of such holdover period and any then-accrued Conditionally Waived Pre-Reduction Base Rent Amount shall immediately be due and payable by Tenant to Landlord).
3.3Demising Work and Costs. Notwithstanding Section 7 below to the contrary, Landlord shall, using Building standard materials and in accordance with Building standards, perform the following work (collectively, the "Demising Work"): (i) construct the required demising wall(s) to separate the Remaining Premises and the Reduction Premises; and
(ii) separate the electrical, HVAC and other systems and equipment serving the Reduction Premises from such systems and equipment serving the Remaining Premises (as and to the extent
necessary, as reasonably determined by Landlord). Subject to potential future reimbursement by Landlord as and to the extent set forth in Section 15 below, Tenant shall pay for all costs of the design, permitting and construction of the Demising Work (collectively, the "Demising Work Costs"), which payment shall be made to Landlord as set forth hereinbelow. Concurrently with Tenant's execution and delivery of this Fourth Amendment, Tenant shall deliver to Landlord an amount equal to $58,482.50 as the currently estimated Demising Work Costs. Following the date that the Demising Work is completed, Landlord shall provide Tenant with a written reconciliation of the total Demising Work Costs as compared to the estimated Demising Work Costs previously paid by Tenant, and Tenant shall pay to Landlord any underpayment of Demising Work Costs made by Tenant, or Landlord shall reimburse to Tenant any overpayment of Demising Work Costs made by Tenant, as the case may be, within thirty (30) days after Landlord’s delivery of such written reconciliation to Tenant (together with reasonable supporting documentation therefor). For purposes of this Fourth Amendment, the Demising Work shall be deemed "Substantially Completed" upon the completion of the foregoing items substantially in accordance with this Section 3.3. If Landlord shall encounter any delays in causing the Demising Work to be Substantially Completed as a result of any acts or omissions of Tenant, or its agents, employees or contractors (collectively, "Tenant Delays"), then, notwithstanding anything to the contrary set forth in the Lease (as hereby amended), Tenant shall pay to Landlord, as Additional Rent under the Lease, as hereby amended, the product of the per diem amount of the Conditionally Waived Pre-Reduction Base Rent Amount for the entire Premises multiplied by the number of days of such Tenant Delays. Tenant shall deliver such payment to Landlord within thirty (30) days after Tenant's receipt of such statement from Landlord specifying such Tenant Delays (provided, that, Landlord acknowledges and agrees that any such amounts so paid by Tenant as the Conditionally Waived Pre-Reduction Base Rent Amount hereunder shall be deducted on a per diem basis from any other recovery of the Conditionally Waived Pre-Reduction Base Rent Amount that includes any such days for which the same was applicable, such that Landlord does not double recover any such amounts).
3.4Acceptance of Inconveniences. The parties hereby agree that the Demising Work will be performed during Tenant's occupancy of the Premises, and in connection therewith, Tenant hereby acknowledges and agrees: (i) to accept any and all inconveniences associated with the performance of the Demising Work which may occur during such occupancy including, without limitation, dust, noise, etc.; (ii) that the performance of the Demising Work shall in no way constitute a constructive eviction of the Tenant under the Lease (as amended hereby) nor entitle Tenant to any abatement of rent payable pursuant to the Lease, as amended hereby; and (iii) Landlord shall not be liable to Tenant for, and Tenant shall not be entitled to any compensation or damages from Landlord for, loss of the use of all or any part of the Premises or of any personal property or improvements therein resulting from the performance of the Demising Work, or for any inconvenience or annoyance occasioned thereby or for any injury to or interference with Tenant's business.
3.5Confirmation of Dates. After the Reduction Date occurs, Landlord shall deliver to Tenant a Confirmation of the Reduction Date on Landlord's commercially reasonable form, setting forth, among other things, the Reduction Date and the Fourth Amendment Term Expiration Date, which Confirmation of the Reduction Date Tenant shall execute and return to Landlord within five (5) business days after Tenant's receipt thereof. If Tenant fails to execute and return the Confirmation of the Reduction Date within such five (5) business day period, Tenant
shall be deemed to have approved and confirmed the dates set forth therein provided that such deemed approval shall not relieve Tenant of its obligation to execute and return the Confirmation of the Reduction Date (and such failure shall constitute a default by Tenant under the Lease, as amended hereby).
3.6Effect of Pre-Reduction Default. Notwithstanding anything in the Lease, as hereby amended, to the contrary, if Tenant defaults beyond all applicable notice and cure periods under the Lease, as hereby amended, prior to the occurrence of the Reduction Date, then, at Landlord's option, without limiting any of Landlord's other rights and remedies under the Lease, at law and/or in equity, (i) there shall be no reduction of the Premises under this Fourth Amendment and there shall be no extension of the Lease Term for the Fourth Amendment Term (such that, the terms of Sections 3.1, 3.2, 3.3 and 3.5 above and Sections 4, 5, 6, 8, 9.3 and 15 below, shall be of no further force or effect, unless [and to the extent] illogical or inconsistent with the intention of this Fourth Amendment and this Section 3.6), and (ii) Tenant, at Tenant's sole cost and expense, shall reimburse Landlord for (A) all Demising Costs then-incurred by Landlord (taking into account any estimated Demising Work Costs previously paid by Tenant to Landlord) and (B) all actual, reasonable costs incurred by Landlord to remove any unfinished demising work and restore the same to the pre-demising work condition (which reimbursements/payments shall be made within ten [10] days after Tenant's receipt of invoice therefor from Landlord, together with reasonable supporting documentation).
4.Extension of Lease Term. The current Lease Term (i.e., the Second Extended Term and the Expansion Space Term), which is currently scheduled to expire on September 30, 2026, is hereby extended with respect to the Remaining Premises, only, for a term to expire on the date (the "Fourth Amendment Term Expiration Date") that is sixty (60) months after the Reduction Date, unless sooner terminated pursuant to the terms of the Lease, as hereby amended. The sixty (60) month period from the Reduction Date (sometimes, the "Fourth Amendment Term Commencement Date") through and including the Fourth Amendment Term Expiration Date shall be referred to herein as the "Fourth Amendment Term".
5.1Base Rent. During the Fourth Amendment Term, Tenant shall pay Base Rent to Landlord for the Remaining Premises in accordance with the following schedule (subject to the terms and conditions of Section 5.2 below):
|
|
|
|
Months of Fourth Amendment Term |
Monthly Base Rental Rate per Rentable Square Foot of Remaining Premises |
Annual Base Rent |
Monthly Installment of Base Rent |
1 – 12 |
$4.00 |
$222,672.00 |
$18,556.00 |
13 – 24 |
$4.12 |
$229,352.16 |
$19,112.68 |
25 – 36 |
$4.24 |
$236,032.32 |
$19,669.36 |
37 – 48 |
$4.37 |
$243,269.16 |
$20,272.43 |
49 – 60 |
$4.50 |
$250,506.00 |
$20,875.50 |
5.2Special Payment. Notwithstanding anything in the Lease, as hereby amended, with respect to the Base Rent due and payable by Tenant under Section 5.1 above, Tenant shall pay the same to Landlord in pre-paid six (6) month installments (except, that, Landlord hereby acknowledges and agrees that the first [1st] such prepayment may be limited to a pre-paid amount of three (3) monthly installments); provided, that, if Tenant does not default under the Lease, as hereby amended, beyond all applicable notice and cure periods during the first twenty-four (24) months of the Fourth Amendment Term, then the special payment provisions set forth hereinabove shall cease and Tenant shall thereafter (commencing for the twenty-fifth [25th] month of the Fourth Amendment Term) pay such monthly installments of Base Rent in accordance with the terms and conditions of the Lease (i.e., on a monthly basis). For purposes of an example of the foregoing, if the Fourth Amendment Term commences on December 1, 2024, then Tenant shall pay the three (3) monthly installments of Base Rent for December 2024 through and including February 2025 to Landlord on or before December 1, 2024, the six (6) monthly installments of Base Rent for March 2025 through and including August 2025 to Landlord on or before March 1, 2025, the six (6) monthly installments of Base Rent for September 2025 through and including February 2026 to Landlord on or before September 1, 2025, etc. Such applicable prepaid Base Rent amounts shall constitute Tenant's irrevocable, absolute, and unconditional payment in advance of the applicable Base Rent due and payable under the Lease, as hereby amended, for such applicable 6-month (or 3-month, as the case may be) periods (each, as the case may be, a "Prepaid Rent Period"). Except for such foregoing amounts during the applicable Prepaid Rent Period, Tenant shall remain liable under the Lease, as hereby amended, for the timely payment of any and all other amounts and the performance of any other obligations due under the Lease, as hereby amended. Notwithstanding anything in the Lease, as hereby amended, or any provision under applicable law now or hereinafter in effect to the contrary, Landlord and Tenant acknowledge and agree that: (i) the applicable prepaid Base Rent amounts shall be immediately and fully earned by Landlord upon receipt and shall be non-refundable for any reason whatsoever;
(ii) once paid to Landlord, Tenant shall have no further right, title, or interest in the applicable prepaid Base Rent amounts and Tenant shall unconditionally and irrevocably relinquish, release, and waive any right, title or interest in the applicable prepaid Base Rent amounts; (iii) immediately upon receipt of the applicable prepaid Base Rent amounts by Landlord, Landlord shall apply the applicable prepaid Base Rent amounts in advance to the applicable Base Rent under the Lease for the applicable Prepaid Rent Period; and (iv) in the event the Lease, as hereby amended, is terminated for any reason whatsoever, including but not limited to, upon the Tenant's default or breach of the Lease or the rejection of the Lease, as hereby amended, in bankruptcy or otherwise, Tenant shall have no claim to or right of refund of the applicable prepaid Base Rent amounts. Landlord and Tenant further: (A) acknowledge and agree that in no event or circumstance shall the applicable prepaid Base Rent amounts be deemed to be or treated as a "security deposit" under any laws applicable to security deposits in the commercial context including Section 1950.7 of the California Civil Code, as such section now exists or as may be hereafter amended or succeeded or any similar laws, statutes, or ordinances now or hereinafter in effect ("Security Deposit Laws"),
(B) acknowledge and agree that the applicable prepaid Base Rent amounts is not intended to serve as a security deposit or to secure the performance of the Lease, as hereby amended, and the Security Deposit Laws shall have no applicability or relevancy thereto, and (C) waive any and all rights, duties, and obligations either party may now have or, in the future, will have relating to or arising from the Security Deposit Laws with respect to the applicable prepaid Base Rent amounts. Tenant also unconditionally and irrevocably waives any rights under Section 1951.7 of the
California Civil Code, including, but not limited to, any right to request notice under Section 1951.7(c) and any similar laws, statutes, or ordinances now or hereinafter in effect.
6.Tenant's Pro Rata Share of Taxes and Expenses. During the Fourth Amendment Term, Tenant's Pro Rata Share of Expense Excess and Tax Excess for the Remaining Premises shall equal 1.49% (i.e., 4,639 rentable square feet of the Existing Premises/310,638 rentable square feet of the Building); and (ii) the Base Year for purposes of calculating Expense Excess and Tax Excess for the Remaining Premises for the Fourth Amendment Term shall be calendar year 2018.
7.Condition of Premises. Tenant is currently in occupancy of the Premises (i.e., the Reduction Premises and the Remaining Premises) and shall continue occupancy of the same in its "AS IS" condition as of the Effective Date (and with respect to the Remaining Premises, as of the Reduction Date) without any agreements, representations, understandings or obligations on the part of the Landlord to perform or to pay for any alterations, repairs or improvements to the Premises, Building or Project, except as otherwise expressly set forth in Section 3.3 above with respect to the Demising Work.
8.1Revised Parking. Effective as of the Fourth Amendment Term Commencement Date, Section 6 of the Second Amendment shall be deleted and of no further force or effect. During the Fourth Amendment Term, in lieu of the twenty (20) Unreserved Parking Passes defined and set forth in Section 1.12 of the Original Lease, subject to the provisions of this Section 8 below, Tenant shall have the right, but not the obligation, to lease up to a total of sixteen
(16) unreserved parking spaces (i.e., four [4] unreserved parking passes per each 1,000 rentable square feet of the Remaining Premises) (collectively, the "Fourth Amendment Term Unreserved Parking Passes") located in those portions of the parking facilities serving the Building designated by Landlord from time to time for unreserved parking for the Building. Upon written notice (the "Parking Notice") delivered by Tenant to Landlord prior to the Fourth Amendment Term Commencement Date, Tenant shall designate the number of Fourth Amendment Term Unreserved Parking Passes (but in no event more than sixteen [16]) that Tenant elects to rent during the Fourth Amendment Term. Tenant's failure to deliver to Landlord a Parking Notice prior to the Fourth Amendment Term Commencement Date designating the number of Fourth Amendment Term Unreserved Parking Passes (if any) that Tenant elects to Lease shall be deemed Tenant's election to lease all sixteen (16) of the Fourth Amendment Term Unreserved Parking Passes for the entire Fourth Amendment Term; provided, however, at any time during the Fourth Amendment Term, Tenant shall have the right upon thirty (30) days' advance written Parking Notice delivered by Tenant to Landlord from time to time to increase and/or decrease the number of Fourth Amendment Term Unreserved Parking Passes that Tenant shall rent (but in no event in excess of sixteen [16]). During the Fourth Amendment Term, Tenant's use of the Fourth Amendment Term Unreserved Parking Passes (if any) shall be free of any monthly parking charges. Tenant's use of the Fourth Amendment Term Unreserved Parking Passes shall otherwise be subject to the applicable terms and conditions of the Original Lease.
8.2No Reserved Parking. Notwithstanding anything in the Lease to the contrary, effective as of the Fourth Amendment Term Commencement Date, Tenant shall have no rights to any reserved parking spaces under the Lease, as hereby amended.
8.3Visitor Parking. Notwithstanding anything in this Section 8 above and/or Section 28.02 of the Original Lease to the contrary, during the Fourth Amendment Term, subject to availability as determined by Landlord in Landlord's sole absolute discretion, free of parking charges, Tenant's visitors shall continue to be permitted to park in those certain areas of the parking facilities serving the Building that are designated for visitor parking by Landlord from time to time.
9.1Removal of Building Top Signage and Loss of Rights. Notwithstanding anything in the Lease, as hereby amended, effective as of the Effective Date, Tenant's right to maintain and display the Building Top Sign (as defined and set forth in Section 10.1 of the Second Amendment) shall be deleted and of no further force or effect, and following the mutual execution and delivery of this Fourth Amendment, Landlord, at Tenant's sole cost and expense, shall remove the same from the Building, repair all damage thereto and restore the portion of the Building where the Building Top Sign was located to its original condition prior to the installation of the Building Top Sign. Tenant shall reimburse Landlord for all such costs incurred by Landlord within thirty
(30) days after receipt of invoice therefor from Landlord, together with reasonable supporting documentation.
9.2Removal of Monument Signage and Loss of Rights. Notwithstanding anything in the Lease, as hereby amended, effective as of the Effective Date, Tenant's right to maintain and display one (1) panel on the Monument Sign (as defined and set forth in Section 32 of the Original Lease, as last amended by Section 10.2 of the Second Amendment) shall be deleted and of no further force or effect, and following the mutual execution and delivery of this Fourth Amendment, Landlord, at Tenant's sole cost and expense, shall remove the panel from the Monument Signage and repair all damage thereto where the panel was located. Tenant shall reimburse Landlord for all such costs incurred by Landlord within thirty (30) days after receipt of invoice therefor from Landlord, together with reasonable supporting documentation.
9.3Remaining Signage. For purposes of clarification, during the Fourth Amendment Term, Tenant shall continue to have the right to install one (1) identification sign at the entry doors of the Remaining Premises (and a listing on the electronic building directory), which shall otherwise be subject to and in accordance with the terms and conditions of Section 32 of the Original Lease.
10.Security Deposit Reduction. Effective as of the Effective Date: (i) the total amount of the Security Deposit to be held by Landlord under the Lease, as hereby amended, shall be reduced by $120,568.50 to a new revised total amount of $39,431.50; (ii) in connection therewith:
(A) concurrently with Tenant's execution and delivery of this Fourth Amendment, Tenant shall deliver to Landlord a portion of the Full SD Replenishment Amount equal to the revised total Security Deposit hereinabove (i.e., $39,431.50); and (B) Tenant shall have no obligation to deliver to Landlord the remaining portion of the Full SD Replenishment Amount in the amount of
$120,568.50 (the "Waived SD Replenishment Amount") and Tenant hereby forever relinquishes and releases all of its right, title and interest in and to the Waived SD Replenishment Amount and agrees that no such portion of the previous Security Deposit equal to the Waived SD
Replenishment Amount will be returned to Tenant notwithstanding anything to the contrary contained in the Lease (as hereby amended).
11.Deletion of Right of First Offer, Right of First Refusal and Extension Option. Effective as of the Effective Date, Sections 8, 9 and 11 of the Second Amendment shall be deleted and of no further force or effect, such that Tenant shall no longer have such expansion and/or renewal rights set forth therein.
12.Past Due Amount; Repayment Period. Notwithstanding any provisions of the Lease, as hereby amended, to the contrary, Landlord shall defer Tenant's obligation to pay the Past Due Amount (i.e., in the amount of $1,359,062.77) for repayment in accordance with the provisions of this Section 12 (subject to Section 13 below). Notwithstanding any such deferment, and subject to the applicable terms and conditions in this Fourth Amendment with respect to the Conditionally Waived Pre-Reduction Base Rent Amount, Tenant shall otherwise remain responsible for the payment of all of Tenant's other monetary obligations under the Lease, as hereby amended. On or before the first (1st) day of each calendar month during the scheduled sixty (60) month Fourth Amendment Term (herein, the "Repayment Period"), time being of the essence as to each such date, and in addition to timely paying, pursuant to the provisions of the Lease, all of its other monetary obligations under the Lease, as hereby amended, Tenant shall pay to Landlord (without notice or demand by Landlord) the Past Due Amount in monthly installments as set forth on Exhibit B attached hereto–. Any failure by Tenant to properly and timely pay the Past Due Amount pursuant to and in accordance with this Section 12 shall constitute a material default by Tenant under the Lease (as hereby amended). In no event shall Tenant's obligation to repay the Past Due Amount be abated for any reason whatsoever, including without limitation, pursuant to Sections 6 (as amended by Section 12.1 of the First Amendment), 16 and/or 17 of the Original Lease.
13.Accelerated Amount; Adverse Action. Notwithstanding any contrary provision of the Lease, as hereby amended, Landlord shall have the right, at its election, in addition to any other rights and remedies available to Landlord under the Lease, as hereby amended, at law and/or in equity, to (i) accelerate the Repayment Period provided for the Past Due Amount, and (ii) declare the remaining Past Due Amount (and/or the Conditionally Waived Pre-Reduction Base Rent Amount) to all be immediately due and payable in full by Tenant (the amounts set forth in clause
(ii) hereinabove, "Accelerated Amount"), upon the occurrence of any of the following (each, an "Adverse Action"): (A) any default by Tenant beyond all applicable notice and cure periods under the Lease, as hereby amended; (B) any termination of the Lease (as hereby amended), including pursuant to Sections 16 and 17 of the Original Lease; (C) a general assignment by Tenant for the benefit of creditors, or the taking of any corporate action in furtherance of bankruptcy or dissolution (whether or not there exists any proceeding under an insolvency or bankruptcy law), or the filing by or against Tenant of any proceeding under an insolvency or bankruptcy law; (D) the rejection, or deemed rejection, of the Lease, as hereby amended, in any insolvency or bankruptcy case or proceeding; (E) any assignment or attempted assignment of the Lease, as hereby amended, by the original Tenant executing this Fourth Amendment (the "Original Tenant") to any third party; or (F) a Confidentiality Breach (as defined below). Notwithstanding any contrary provision of the Lease, as hereby amended, the Past Due Amount shall constitute a part of the "Rent" (as that term is defined in the Original Lease) payable by Tenant in connection with the Premises. Landlord may include in any sums or amounts it seeks to recover from Tenant
the aggregate Past Due Amount the deferral of which has previously been granted by Landlord to Tenant, it being agreed by Tenant that deferral of the Past Due Amount has been granted by Landlord in consideration of Tenant not defaulting under the terms and conditions of the Lease, as hereby amended. Tenant agrees that Landlord may include the Accelerated Amount in any statutory notices (or notices required under the Lease, as hereby amended), that Landlord is required to give Tenant as a condition precedent to an action for recovery of possession of the Premises.
14.Sublease Rent. Without limiting anything in Section 13 above, and without limiting any of Landlord's other applicable rights and remedies with respect to a sublease and/or sublease rents under the Lease, as hereby amended, Tenant acknowledges and agrees that, notwithstanding anything in the Lease, as hereby amended, to the contrary (including, without limitation, Section 11 of the Original Lease), if Tenant enters into a new sublease (a "New Sublease") for all or any portion of the Premises during the Repayment Period, then, at Landlord's option, Tenant shall direct the subtenant under the New Sublease (the "New Subtenant") to pay to Landlord, on a direct basis, the rents and any other sums due and to become due under the Sublease (the "Sublease Rents"), which Sublease Rents, less any Transfer Premium Component, as defined and set forth hereinbelow (such Sublease Rents, less any Transfer Premium Component, the "Available Sublease Rents") will be immediately applied by Landlord as a credit against the balance of the Past Due Amount due and payable by Tenant under Section 12 above until such balance thereof is reduced to $0.00, but which application of such Available Sublease Rents by Landlord shall be credited to the last remaining monthly installments due and payable at the end of the Repayment Period in reverse order. Notwithstanding the foregoing, any portion of the Sublease Rents so received by Landlord that otherwise constitutes a part of the Transfer Premium under Section 11.02 of the Original Lease (any such portion, collectively, the "Transfer Premium Component") shall be retained by Landlord and not be applied to (or otherwise reduce) the Past Due Amount. For purposes of clarification, if Landlord so elects to receive the Sublease Rents as set forth hereinabove, Tenant shall not be relieved from otherwise repaying the Past Due Amount in the monthly installments under Section 12 above, but such repayment may be achieved faster through a combination of such monthly installments from Tenant that occur as scheduled from the beginning of the Repayment Period and the application of the Available Sublease Rents received directly by Landlord and credited to the end of the Repayment Period in reverse order. Following the date that the Past Due Amount is fully repaid, any such election by Landlord for direct payment of the Sublease Rents shall be of no further force and effect, and New Subtenant may commence payment thereof to Tenant under and in accordance with the New Sublease (subject, however, to Tenant's obligation to remit to Landlord any Transfer Premium Component, if applicable). If Landlord receives any over-payment of Available Sublease Rents (i.e., any excess after the Past Due Amount is reduced to $0.00), then, Landlord shall return the balance of such excess Available Sublease Rents to Tenant (or, at Landlord's election, apply the same to any balance of Rent next due and payable by Tenant under the Lease, as hereby amended).
15.Potential Reimbursement of Demising Work Costs and Tenant Commission Amount. If Tenant does not default beyond any applicable notice and cure periods under the Lease, as hereby amended, between the Effective Date and the last day of the twenty-fourth (24th) month of the Fourth Amendment Term (and does not assign the Lease, as hereby amended, to any third party that is not the Original Tenant), then Landlord shall reimburse Original Tenant for
(i) the total Demising Work Costs previously paid by Tenant to Landlord, and (ii) the leasing
commission actually paid by Tenant to Tenant's Broker in connection with this Fourth Amendment in the amount of $47,287.84. At Landlord's option, Landlord may deliver such amounts to Tenant by check, or apply such amounts as a credit against the Base Rent next due and payable by Tenant under the Lease, as hereby amended.
16.Reimbursement of Legal Fees by Tenant. Following the execution of this Fourth Amendment, within ten (10) days after Tenant's receipt of invoice therefor from Landlord, Tenant shall reimburse Landlord for all of Landlord's actual, out-of-pocket attorneys' fees incurred by Landlord in connection with the preparation and negotiation of this Fourth Amendment.
17.Confidentiality Breach. Tenant acknowledges that the terms of this Fourth Amendment, including, without limitation, Landlord's agreement to settle the Existing Dispute, conditionally waive the Conditionally Waived Pre-Reduction Base Rent Amount and defer Tenant's obligation to repay the Past Due Amount (and the terms of the repayment thereof) is confidential information. Tenant shall keep such information strictly confidential and shall not disclose such confidential information to any person or entity other than Tenant's employees, lenders, creditors, and legal and accounting consultants, or as otherwise required by law or court order (collectively, the "Authorized Parties"). If Tenant or any Authorized Parties disclose any such confidential information to anyone other than the Authorized Parties (herein, a "Confidentiality Breach"), then in addition to all of Landlord's other rights and remedies at law and/or in equity resulting from Confidentiality Breach, Landlord shall have all applicable rights set forth in Section 13 above due to the same being an Adverse Action.
18.Brokers. Landlord and Tenant each hereby represents and warrants to the other that it has had no dealings with any real estate broker or agent in connection with the negotiation of this Fourth Amendment, other than Jones Lang LaSalle, representing Tenant ("Tenant's Broker"), and that it knows of no other real estate broker or agent who is entitled to a commission in connection with this Fourth Amendment. Subject to Section 15 above, with respect to commissions in connection with this Fourth Amendment, Tenant shall be responsible for paying any commission to Tenant's Broker. Each party agrees to indemnify and defend the other party against and hold the other party harmless from any and all claims, demands, losses, liabilities, lawsuits, judgments and costs and expenses (including, without limitation, reasonable attorneys' fees) with respect to any leasing commission or equivalent compensation alleged to be owing on account of the indemnifying party's dealings with any other real estate broker or agent in connection with this Fourth Amendment.
19.No Further Modification. Except as set forth in this Fourth Amendment, all of the terms and provisions of the Lease shall remain unmodified and in full force and effect.
20.Counterparts. This Fourth Amendment may be executed in multiple counterparts, each of which is to be deemed original for all purposes, but all of which together shall constitute one and the same instrument.
21.Electronic Signatures. Each of the parties to this Fourth Amendment (i) has agreed to permit the use from time to time, where appropriate, of telecopy or other electronic signatures (including, without limitation, DocuSign) in order to expedite the transaction contemplated by this Fourth Amendment, (ii) intends to be bound by its respective telecopy or other electronic
signature, (iii) is aware that the other will rely on such telecopied or other electronically transmitted signature, and (iv) acknowledges such reliance and waives any defenses to the enforcement of this Fourth Amendment and the documents affecting the transaction contemplated by this Fourth Amendment based on the fact that a signature was sent by telecopy or electronic transmission only.
[SIGNATURES APPEAR ON THE FOLLOWING PAGE]
IN WITNESS WHEREOF, this Fourth Amendment has been executed as of the day and year first above written.
LANDLORD: RREF II PACIFIC CENTER LLC,
a Delaware limited liability company
By: Name: Jason Morrow
TENANT: EMMAUS LIFE SCIENCES, INC.,
a Delaware corporation
By: Name: Willis Lee
EXHIBIT A
DEPICTION(S) OF REDUCTION PREMISES AND REMAINING PREMISES

EXHIBIT B AMORTIZATION/REPAYMENT SCHEDULE
|
|
|
AR through 08.24 |
1,519,062.77 |
|
Less: sec dep not repleni |
(160,000.00) |
|
|
1,359,062.77 |
|
5 years = 60 months |
60.00 |
|
|
|
|
Per month |
22,651.05 |
|
|
|
|
|
|
|
Months of Fourth Amendment Term |
Monthly Amortized Back Rent Amount |
Annual Amortized Back Rent |
1 - 12 |
22,651.05 |
271,812.60 |
13 - 24 |
22,651.05 |
271,812.60 |
25 - 36 |
22,651.05 |
271,812.60 |
37 - 48 |
22,651.05 |
271,812.60 |
49 - 60 |
22,651.05 |
271,812.60 |
4860-4104-6240.2
377146.00011/11-20-24/smf/smf